泸房汇是泸州本土专业房产网络平台,为广大用户提供房产资讯、楼盘信息、二手房和租房等信息。服务热线:0830-1234567 我要发布 注册 登录
位置:首页 \ 资讯中心 \ 江阳区前进中路旧城改造项目获批!附规划图
江阳区前进中路旧城改造项目获批!附规划图
泸房汇  2021年02月22日

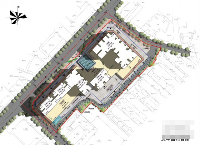
2021年2月19日,泸州市自然资源和规划局发布了关于江阳区前进中路旧城改造项目修建性详细规划方案的公示的说明。

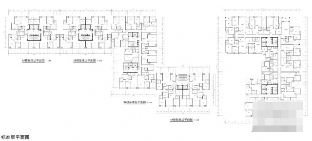
根据公示信息显示,江阳区前进中路旧城改造项目位于泸州市江阳区前进中路东南侧。项目用地总面积为20.36亩,规划总建筑面积约121902.6㎡,其中地上计容建筑面积为101658㎡㎡;地下计容建筑面积为8147.4㎡;不计容建筑面积为12096.45㎡,项目设计总户数1050户,设计停车位532个。

项目地上容积率7.49,地下商业容积率0.6,建筑密度47.56%。

根据规划设计方案,项目地上住宅面积为89274㎡;地上商业用房面积为10594.5㎡;电大安置房面积为1790.77㎡;地下商业用房面积为6366㎡;幼儿园安置房面积为1781.4㎡。

如需了解更多泸州楼市资讯请继续关注泸房汇或后台与我们联系!

留言
热点推荐 更多
1 涉及补贴、公积金贷款额度等,泸州出台9条优化住房政策
2 福利来了,央行发布通知涉及降首付!降利率!
3 揽金1.97亿元,城北公园傍67亩地块成功拍出!
4 揽金5.17亿元,城西新城164亩地块成功拍出!
5 受疫情影响,9月份泸州主城区新建商品住房销售376套!
6 约4.3亿元,涉及城西和城北的两宗地块成功拍出!
7 1070套!8月份泸州主城区新建商品住房成交数据公布
8 土地拍卖预告:城西新城再推地块,会花落谁家呢?
楼市动态
土拍信息
政策法规
购房指南
购房指南 更多指南
房产交易中为什么要进行“网签”,是否可以撤销?
夫妻买房登记在男方母亲名下 离婚了房子归谁?
这5种有房产证的房子碰不得,签了合同也无法过户!
选定楼盘后 如何挑选属于适合自己的户型?
购买洋房需注意这些 看看没有坏处
买期房实地看房很重要 需要重点关注这4处
业主急于售房怎么办?四大法宝拿走不谢
购买二手房应该尽快过户 这几种风险需注意!
推荐新房 更多新房
高新悦城 4850元/㎡ 泸州市酒谷大道高新区学校旁(酒谷大道4段)
恒利江悦明珠 7800元/㎡ 泸州市江阳区茜江路二段556号(张坝桂圆林景区北门)
世茂璀璨里程 7700元/㎡ 泸州市江阳区城西云峰路(泸州高中城西校区旁)
高新湖畔 6500元/㎡ 泸州高新区渔子溪生态公园内
阳光江湾壹号院 7600元/㎡ 泸州·城西·康城路(城西客运中心对面)
阳光森林城市 6700元/㎡ 泸州市龙马潭区学士山公园旁
泸房汇
泸房汇手机移动版
泸房汇
泸房汇微信公众号
泸房汇
泸房汇微信小程序
泸房汇-泸州房产网 服务热线:0830-1234567 服务/投稿:xhf-agh(微信号)
COPYRIGHT© 2019-2025, All RIGHTS RESERVED