泸房汇是泸州本土专业房产网络平台,为广大用户提供房产资讯、楼盘信息、二手房和租房等信息。服务热线:0830-1234567 我要发布 注册 登录
位置:首页 \ 资讯中心 \ 泸州将建国际汽车城 位于城北
泸州将建国际汽车城 位于城北
泸房汇  2020年06月25日

近日,泸州市自然资源和规划局发布了关于泸州市亿城汽车贸易有限公司泸州国际汽车城项目批前公示的说明。

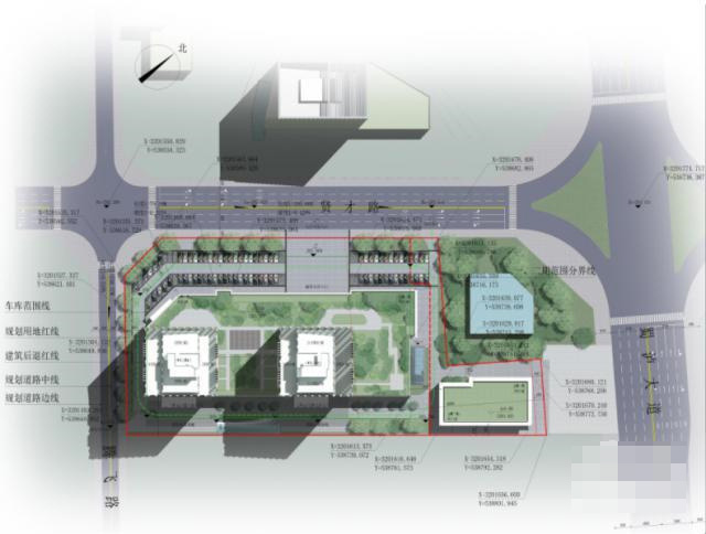
据公示信息显示国际汽车城项目位于龙马潭区贤才路南侧,蜀泸大道西侧。项目用地面积29.91亩,总建筑面积104368.5㎡,容积率3.998,建筑密度44.94%,绿地率20.65%。

根据规划设计方案将修建商业、酒店、办公、地下车库等。其中,1#商业建筑面积为2354.72㎡;2#1-4f商业建筑面积为30244.9㎡;2#一单元5-22f酒店建筑面积为23920.96㎡;2#2二单元5-22f办公建筑面积为23217.56,地下车库建筑面积为24630.36㎡。

项目设计停车位626个,其中地下停车位538个,地上停车位88个。

如需了解更多泸州楼市资讯请继续关注泸房汇或后台与我们联系!

留言
热点推荐 更多
1 涉及补贴、公积金贷款额度等,泸州出台9条优化住房政策
2 福利来了,央行发布通知涉及降首付!降利率!
3 揽金1.97亿元,城北公园傍67亩地块成功拍出!
4 揽金5.17亿元,城西新城164亩地块成功拍出!
5 受疫情影响,9月份泸州主城区新建商品住房销售376套!
6 约4.3亿元,涉及城西和城北的两宗地块成功拍出!
7 1070套!8月份泸州主城区新建商品住房成交数据公布
8 土地拍卖预告:城西新城再推地块,会花落谁家呢?
楼市动态
土拍信息
政策法规
购房指南
购房指南 更多指南
房产交易中为什么要进行“网签”,是否可以撤销?
夫妻买房登记在男方母亲名下 离婚了房子归谁?
这5种有房产证的房子碰不得,签了合同也无法过户!
选定楼盘后 如何挑选属于适合自己的户型?
购买洋房需注意这些 看看没有坏处
买期房实地看房很重要 需要重点关注这4处
业主急于售房怎么办?四大法宝拿走不谢
购买二手房应该尽快过户 这几种风险需注意!
推荐新房 更多新房
高新悦城 4850元/㎡ 泸州市酒谷大道高新区学校旁(酒谷大道4段)
恒利江悦明珠 7800元/㎡ 泸州市江阳区茜江路二段556号(张坝桂圆林景区北门)
世茂璀璨里程 7700元/㎡ 泸州市江阳区城西云峰路(泸州高中城西校区旁)
高新湖畔 6500元/㎡ 泸州高新区渔子溪生态公园内
阳光江湾壹号院 7600元/㎡ 泸州·城西·康城路(城西客运中心对面)
阳光森林城市 6700元/㎡ 泸州市龙马潭区学士山公园旁
泸房汇
泸房汇手机移动版
泸房汇
泸房汇微信公众号
泸房汇
泸房汇微信小程序
泸房汇-泸州房产网 服务热线:0830-1234567 服务/投稿:xhf-agh(微信号)
COPYRIGHT© 2019-2025, All RIGHTS RESERVED